TOULOUSE / Location Appartement 3 Pièces 65 m²

1 058 € charges comprises

Référence : GES08001058-455

Nous contacter

ADL Immobilier

Ce bien vous intéresse ?

Contactez-nous !

Description

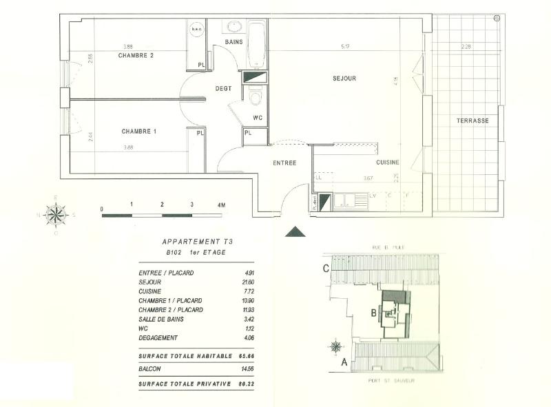
PORT ST SAUVEUR T3 - Toulouse - Port Saint-Sauveur : Situé au premier étage d'une copropriété récente et sécurisée avec gardien, à proximité du Métro François Verdier. Découvrez ce T3 de 65 m² qui se compose d'une entrée, d'une cuisine US équipée ouverte, donnant sur un grand séjour avec terrasse avec vue sur jardin intérieur, de deux chambres avec placards et d'une salle de bains. Chauffage Electrique. Deux places de Parking sous-sol, cellier, ascenseur.
Prenez RDV en ligne ! Cliquez sur "Envoyer un message" ou "Contacter l'agence". Vous recevrez un mail et un SMS pour prendre RDV. S'il n'y a pas ou plus de créneau disponible, vous serez placés en liste d'attente puis averti par sms/mail dès qu'un nouveau créneau sera ouvert.
Renseignez bien vos coordonnées et votre situation professionnelle afin d'être recontacté
ADL Immobilier - locations@adl-immo.fr.
Loyer de 1 057,56 euros par mois charges comprises dont 115,00 euros par mois de provision pour charges (soumis à la régularisation annuelle).
Les honoraires charge locataire sont de 861,46 euros ( soit 13,14 euros/m² ) dont 198,95 euros pour état des lieux ( soit 3,03 euros/m² ).
Montant estimé des dépenses annuelles d'énergie pour un usage standard : entre 600 et 860 euros. Prix moyens des énergies indexés en 2021. Les informations sur les risques auxquels ce bien est exposé sont disponibles sur le site Géorisques : https://www.georisques.gouv.fr

Informations sur le prix

Loyer de 1 058 € charges comprises dont 115 € par mois de provisions pour charges - régularisation annuelle
Honoraires charge locataire : 861.46 € TTC
Dépôt de garantie : 942.56 €

Informations

  • Type de bien : Appartement
  • Disponible : 25/04/2026

Détails

  • Etage : 1
  • Etat général : Très bon état
  • Meublé : non
  • Surface : 65 m²
  • Type de chauffage : individuel électrique
  • Nombre de pièce(s) : 3
  • Nombre de chambre(s) : 2
  • Nombre de salle(s) de bain : 1
  • Nombre de terrasse(s) : 1
  • Nombre de parking(s) : 2

Equipement

  • Parking

Bilan énergétique

Cat. C : 127
DPE C <= 180
Kwh/m²/an
Cat. A : 3
GES G > 100
KgeqCO2/m²/an

 
Montant estimé des dépenses annuelles d'énergie pour un usage standard entre 600€ et 860€ au 29/11/2022

Bilan énergétique

DPE : 127
GES : 3

Les informations sur les risques auxquels ce bien est exposé sont disponibles sur le site Géorisques : www.georisques.gouv.fr

Localisation

Point d'intérêts

Nous écrire

Faisons connaissance

Pour des raisons de sécurité, merci de saisir le code suivant

Captcha anti-spam
(Regénérer)